Call us at 800 -767-7674

Recent Projects: Washington

« Back To Recent Projects

Project Location: Shelton, Washington

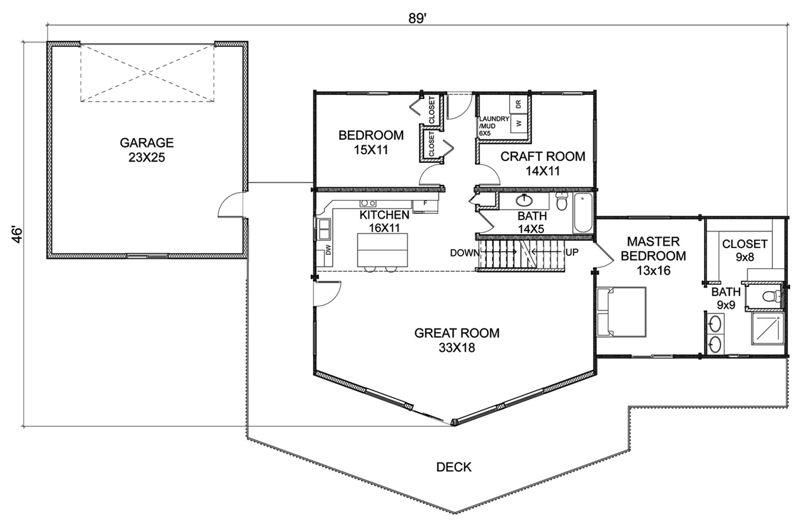
Main Floor: 1,652 Sq Ft, Loft: 648 Sq Ft, Upper Level: 648 Sq Ft, Basement: 922 Sq Ft, Garage: 624 Sq Ft.
Bedrooms - 3, Full Baths - 2


Concept:

(For enlarged view, click on any photo below.)
Basement

Basement

Main Floor

Main Floor

Loft

Loft Floor

Construction:


[ Top of Page ]